Dự án Mipec Rubik 360 (Mipec Xuân Thủy ) là tổ hợp dự án căn hộ cao cấp và nhà ở thấp tầng được xây dựng và phát triển thành một trong những biểu tượng của khu vực Cầu Giấy bởi chủ đầu tư Mipec, dự án này cung cấp ra thị trường khoảng 976 căn hộ cao cấp với diện tích đa dạng từ 53m2 đến 123m2, từ 2 – 4 phòng ngủ .
Dự án gồm 2 toàn căn hộ là A và S với khối đế rộng bao quanh nhiều tiện ích như: bể bơi ngoài trời, bể bơi 4 mùa, sân chơi cho trẻ em, cửa hàng tiện lợi, nhà hàng, cafe,... thêm vào đó là 9 lô biệt thự liền kề, trung tâm thương mại, trường học và 3 tầng hầm để xe rộng lớn.

(Mặt bằng tổng quát Mipec Rubik 360 trong vị trí chiến lược)
MẶT BẰNG TỔNG QUÁT 2 TÒA S & A

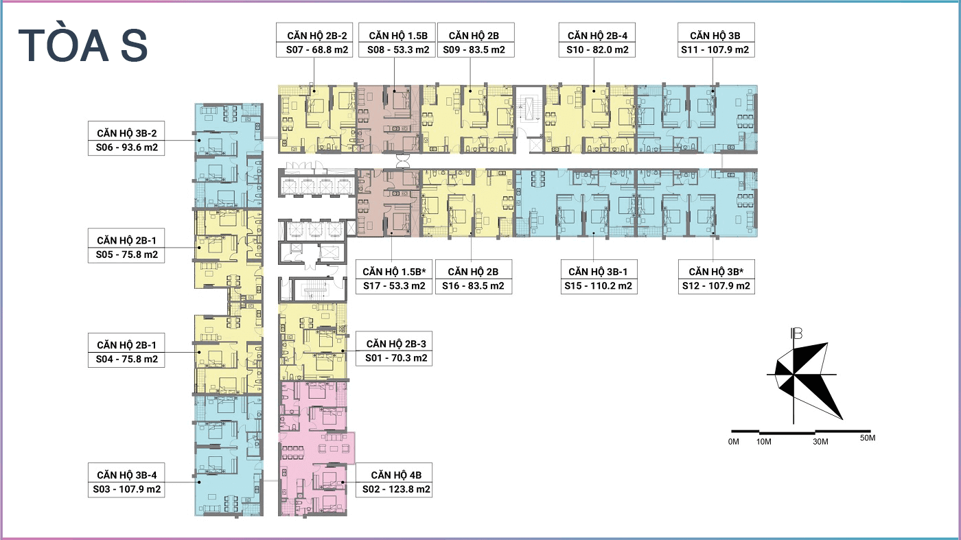
- Chi tiết sơ đồ mặt bằng tháp S của dự án Mipec Xuân Thủy: Tòa S cao 35 tầng (1 tầng đế, 34 tầng căn hộ) và 3 tầng hầm

- Chi tiết sơ đồ mặt bằng tháp A của dự án Mipec Xuân Thủy: Tòa A cao 35 tầng (1 tầng đế, 34 tầng căn hộ) và 3 tầng hầm

Trên đây là tổng quan mặt bằng dự án Mipec Xuân Thủy với tổng hợp các căn hộ chung cư cao tầng cho thuê và bán. Liên hệ ngay đại lý bất động sản Nhà Xin Chào để được tư vấn miễn phí với nhiều thông tin hữu ích từ các chuyên viên chuyên nghiệp hàng đầu.
Liên hệ: 0931226768


Zalo
Messenger